Villa a schiera in vendita

Sestu, Piazza S. Antonio
Informazioni in agenzia
4 locali 4 locali
236 Mq 236 Mq
3 bagni 3 bagni

Villa a schiera in vendita

Sestu, Piazza S. Antonio

Descrizione annuncio

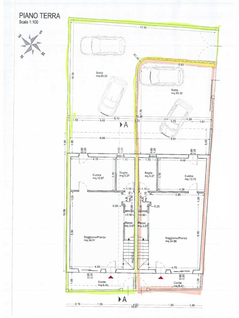
In una tranquilla zona residenziale di Sestu, si propone in vendita due villette bifamiliari bilivelli di nuova costruzione, caratterizzate da ampi spazi, luminosità grazie alla doppia esposizione (nord-ovest e sud-est), e un comodo cortile carrabile sul retro.

Al piano terra troviamo un ampio soggiorno di oltre 30 mq, ideale per chi ama vivere la zona giorno in pieno comfort, una cucina abitabile separata di oltre 12 mq, perfetta per chi desidera uno spazio cucina ben definito, un bagno di servizio e un pratico ripostiglio.

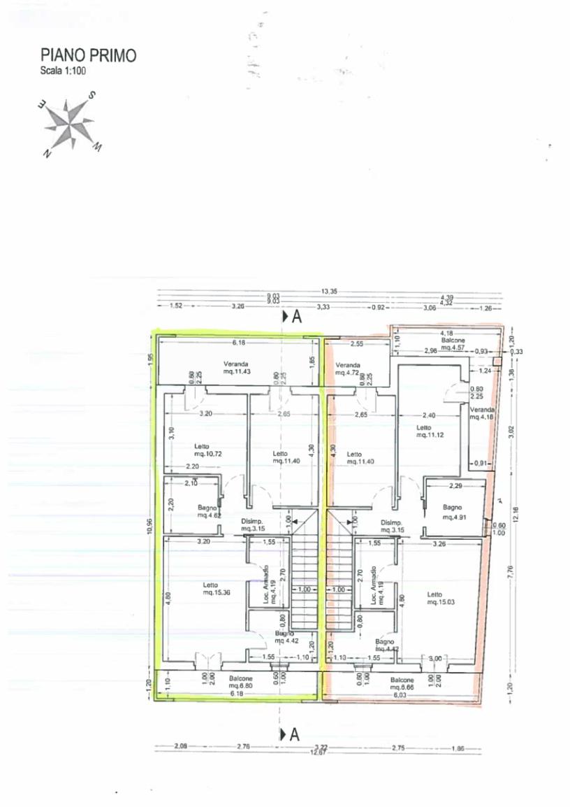
Il piano superiore ospita la zona notte, composta da una spaziosa camera padronale completa di bagno privato e cabina armadio, e due camere singole, entrambe di oltre 10 mq, dotate di doppia porta finestra con accesso diretto alla veranda che affaccia sul cortile. A completare il piano, un ulteriore bagno, pensato per garantire comfort e funzionalità a tutta la famiglia.

Le soluzioni saranno pronte per la consegna nel 2026.

Si fa presente che a breve sarà disponibile il capitolato con tutte le specifiche tecniche e le finiture previste.

Inoltre, fino a quando l'immobile sarà in costruzione, il costruttore offre la possibilità di personalizzare gli ambienti, scegliendo alcune rifiniture e apportando modifiche secondo le proprie esigenze, per rendere la casa davvero su misura.

Un'occasione ideale per chi cerca una casa indipendente, moderna e completamente personalizzabile, in un contesto tranquillo ma comodo a tutti i servizi.

Per maggiori informazioni o per prenotare una visita in cantiere, non esitare a contattarci.

Mostra tutto

Nelle vicinanze

Ricariche auto elettriche Ricariche auto elettriche
Centro Commerciale La Corte del Sole - Iper Pan
2,4 Km
Scuole Scuole
Scuola Media Antonio Gramsci
360 m
Scuola
370 m
Scuola Elementare San Giovanni Bosco
420 m
Scuola elementare Gianni Rodari
490 m
Scuola elementare Anna Frank
530 m
Farmacia Farmacia
Farmacia
160 m
Supermercati Supermercati
Usai Isa
210 m
Drogheria Loi Teresa S.n.c.
640 m
Usai - Nonna Isa
770 m
Nonna Isa
790 m
Gieffe
870 m
Negozi Negozi
Crai
890 m
Negozi
2,3 Km
Ristoranti Ristoranti
Ristorante Pizzeria Il Centrale
110 m
Su Stentu
700 m
Ristoranti
2,2 Km
Il Ghiottone
2,6 Km
Mostra tutto

Caratteristiche

Rif.:
61127706
Piano:
Su più livelli di 2
Totale piani:
2
Posti auto:
2
Balconi:
2
Camere da letto:
3
Mostra tutto
Prezzo Prezzo
Informazioni in agenzia
Spese annue Spese annue
€ 0
Proponi il tuo prezzoProponi il tuo prezzo

Classe Energetica

A4
A4
A4
A4
A4
A4
A4
A4
A4
EP globale non rinnovabile:
4.28 kW h/m² anno
EP globale rinnovabile:
37.79 kW h/m² anno
EP invernale del fabbricato:
EP estiva del fabbricato:
Anno di costruzione:
2026
Riscaldamento:
Autonomo
Tipo impianto:
Ad aria
Tipo alimentazione:
Altro

Ti interessa visionare l'immobile?

Fissa un appuntamento  Fissa un appuntamento

Richiedi informazioni

Clicca su Leggi per aprire l'informativa
* Questi campi sono obbligatori
Affiliato
Studio Leonardo Da Vinci Srl
P.zza Sant'Antonio, 8 09028 Sestu (CA)
P.zza Sant'Antonio, 8 09028 Sestu (CA)
Zona: Sestu
Mostra su mappa
Orari: lunedì - venerdì: 09.00/13.00 16.00/20.00 ; sabato: 09.00/13.00
Affiliato
Studio Leonardo Da Vinci Srl
P.zza Sant'Antonio, 8 09028 Sestu (CA)

2026 Tecnocasa Franchising S.p.A. - P. IVA 08365160152 - Via Monte Bianco 60/A 20089 Rozzano (MI). Ogni agenzia ha un proprio titolare ed è autonoma. Privacy policy | Policy utilizzo | Cookie policy