Casa indipendente in vendita

Sestu, Via Roma
€ 220.000
10 locali 10 locali
500 Mq 500 Mq
2 bagni 2 bagni

Casa indipendente in vendita

Sestu, Via Roma

Descrizione annuncio

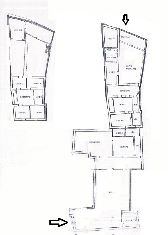
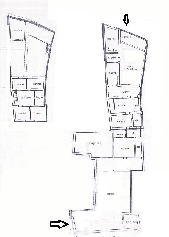
A Sestu, in Via Roma, si propone una soluzione indipendente di ampia metratura, circa 500 mq complessivi, con grande potenziale di frazionamento.
L’immobile, grazie alla presenza di due accessi indipendenti – uno dalla Via Roma e uno dal Vico Roma – si presta perfettamente alla realizzazione di due o più unità abitative.

Nello stato attuale, la proprietà principale si presenta come una casa indipendente in stile campidanese, disposta su due livelli, con ingresso da Via Roma. L’abitazione comprende un locale commerciale, sette camere da letto, due bagni, due soggiorni, una cucina, un cucinotto e un cortile interno di circa 70 mq.

La seconda unità, con accesso dal Vico Roma, è composta da un magazzino, un bagno, una camera e un ampio cortile di oltre 130 mq, ideale per molteplici utilizzi.

Attualmente le due soluzioni vengono vendute congiuntamente, con possibilità di frazionamento, rappresentando un’ottima opportunità sia per uso residenziale, sia per investimento.

Mostra tutto

Nelle vicinanze

Ricariche auto elettriche Ricariche auto elettriche
Centro Commerciale La Corte del Sole - Iper Pan
2,3 Km
Scuole Scuole
Scuola Elementare San Giovanni Bosco
220 m
Scuola Media Antonio Gramsci
480 m
Scuola
490 m
Scuola elementare Anna Frank
590 m
Scuola elementare Gianni Rodari
670 m
Farmacia Farmacia
Farmacia
50 m
Supermercati Supermercati
Usai Isa
140 m
Drogheria Loi Teresa S.n.c.
440 m
Usai - Nonna Isa
620 m
Nonna Isa
920 m
Gieffe
980 m
Negozi Negozi
Crai
690 m
Negozi
2,3 Km
Ristoranti Ristoranti
Ristorante Pizzeria Il Centrale
90 m
Su Stentu
870 m
Ristoranti
2,3 Km
Il Ghiottone
2,7 Km
Mostra tutto

Caratteristiche

Rif.:
61174182
Piano:
Su più livelli di 2
Totale piani:
2
Posti auto:
2
Balconi:
1
Terrazzi:
1
Mostra tutto
Prezzo Prezzo
€ 220.000
Rata mutuo Rata mutuo
€ 1.027 / mese
Spese annue Spese annue
€ 0
Proponi il tuo prezzoProponi il tuo prezzo
Immobile valutato con T·Valuta

Classe Energetica

G
G
G
G
G
G
G
G
G
EP invernale del fabbricato:
EP estiva del fabbricato:
Anno di costruzione:
1967
Riscaldamento:
Assente

Ti interessa visionare l'immobile?

Fissa un appuntamento  Fissa un appuntamento

Richiedi informazioni

Clicca su Leggi per aprire l'informativa
* Questi campi sono obbligatori

Calcola il tuo mutuo

Semplice e senza impegno
Anticipo

( % )
Mutuo

( % )

pochi semplici passi

inserisci i tuoi dati
Questionario completato
Grazie per aver richiesto un appuntamento senza impegno con un nostro Consulente del Credito e Assicurativo.

Hai inserito correttamente tutti i dati necessari e a breve riceverai una e-mail con un link da convalidare per inviare i tuoi dati.
Affiliato
Studio Leonardo Da Vinci Srl
P.zza Sant'Antonio, 8 09028 Sestu (CA)
P.zza Sant'Antonio, 8 09028 Sestu (CA)
Zona: Sestu
Mostra su mappa
Orari: lunedì - venerdì: 09.00/13.00 16.00/20.00 ; sabato: 09.00/13.00
Affiliato
Studio Leonardo Da Vinci Srl
P.zza Sant'Antonio, 8 09028 Sestu (CA)

2026 Tecnocasa Franchising S.p.A. - P. IVA 08365160152 - Via Monte Bianco 60/A 20089 Rozzano (MI). Ogni agenzia ha un proprio titolare ed è autonoma. Privacy policy | Policy utilizzo | Cookie policy