Casa indipendente in vendita

Sestu, Via S. Gemiliano
€ 170.000
6 locali 6 locali
225 Mq 225 Mq
2 bagni 2 bagni

Casa indipendente in vendita

Sestu, Via S. Gemiliano

Descrizione annuncio

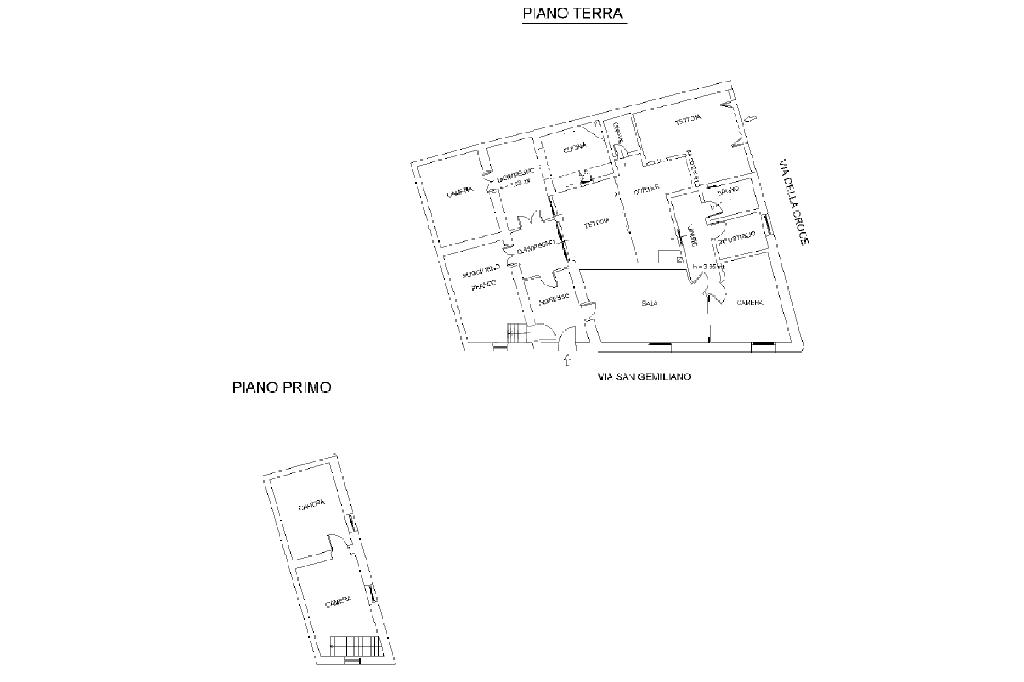
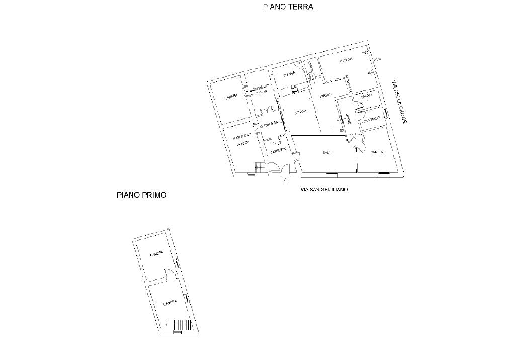
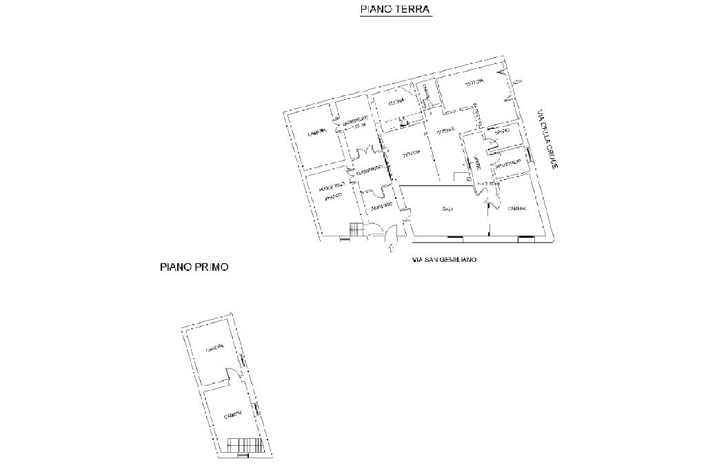
Si propone in vendita un’ampia casa indipendente situata nella zona residenziale di San Gemiliano, una delle aree più tranquille e servite. L'immobile gode di un doppio accesso: l’ingresso pedonale da Via San Gemiliano e il passo carrabile da Via della Croce, una comodità rara che garantisce praticità sia per l’ingresso principale che per l’accesso con l’auto.

La casa si sviluppa quasi interamente al piano terra e offre una superficie commerciale di ben 225 mq, caratterizzata da ambienti spaziosi, funzionali e ben distribuiti. Attualmente la proprietà comprende quattro camere, due ampie sale — rispettivamente di 16 e 24 mq —, due bagni, tre disimpegni e un cortile interno di oltre 40 mq, ideale per momenti di relax all’aperto o per chi desidera uno spazio esterno riservato.

All'interno dell’abitazione sono presenti un camino tradizionale e una stufa a pellet, che donano calore e carattere agli ambienti. L’immobile necessita di lavori di ristrutturazione, ma rappresenta un’ottima opportunità per chi è alla ricerca di una casa da personalizzare secondo il proprio stile. Inoltre, essendo situata in zona B, e quindi priva di vincoli urbanistici, si presta perfettamente anche come investimento, grazie alla possibilità di intervenire liberamente sull'immobile.

Mostra tutto

Nelle vicinanze

Ricariche auto elettriche Ricariche auto elettriche
Centro Commerciale La Corte del Sole - Iper Pan
2,2 Km
Scuole Scuole
Scuola Elementare San Giovanni Bosco
390 m
Scuola materna ed elementare
490 m
Scuola Media Antonio Gramsci
960 m
Scuola
960 m
Scuola elementare Anna Frank
1,1 Km
Farmacia Farmacia
Farmacia
630 m
Supermercati Supermercati
Drogheria Loi Teresa S.n.c.
290 m
Usai - Nonna Isa
570 m
Usai Isa
610 m
Nonna Isa
1,4 Km
Gieffe
1,5 Km
Negozi Negozi
Crai
170 m
Negozi
2,4 Km
Ristoranti Ristoranti
Ristorante Pizzeria Il Centrale
680 m
Su Stentu
1,4 Km
Ristoranti
2,6 Km
Mostra tutto

Caratteristiche

Rif.:
61118160
Piano:
Terra di 2
Totale piani:
2
Posti auto:
1
Camere da letto:
4
Arredamento:
Assente
Mostra tutto
Prezzo Prezzo
€ 170.000
Rata mutuo Rata mutuo
€ 786 / mese
Spese annue Spese annue
€ 0
Proponi il tuo prezzoProponi il tuo prezzo
Immobile valutato con TecnoValore

Classe Energetica

G
G
G
G
G
G
G
G
G
EP globale non rinnovabile:
224.30 kW h/m² anno
EP globale rinnovabile:
37.98 kW h/m² anno
EP invernale del fabbricato:
EP estiva del fabbricato:
Anno di costruzione:
1900
Riscaldamento:
Autonomo
Tipo impianto:
A stufa
Tipo alimentazione:
Altro

Ti interessa visionare l'immobile?

Fissa un appuntamento  Fissa un appuntamento

Richiedi informazioni

* Questi campi sono obbligatori

Calcola il tuo mutuo

Semplice e senza impegno
Anticipo

( % )
Mutuo

( % )

pochi semplici passi

inserisci i tuoi dati
Questionario completato
Grazie per aver richiesto un appuntamento senza impegno con un nostro Consulente del Credito e Assicurativo.

Hai inserito correttamente tutti i dati necessari e a breve riceverai una e-mail con un link da convalidare per inviare i tuoi dati.
Affiliato
Studio Leonardo Da Vinci Srl
P.zza Sant'Antonio, 8 09028 Sestu (CA)
P.zza Sant'Antonio, 8 09028 Sestu (CA)
Zona: Sestu
Mostra su mappa
Orari: lunedì - venerdì: 09.00/13.00 16.00/20.00 ; sabato: 09.00/13.00
Affiliato
Studio Leonardo Da Vinci Srl
P.zza Sant'Antonio, 8 09028 Sestu (CA)

2025 Tecnocasa Franchising S.p.A. - P. IVA 08365160152 - Via Monte Bianco 60/A 20089 Rozzano (MI). Ogni agenzia ha un proprio titolare ed è autonoma. Privacy policy | Policy utilizzo | Cookie policy